Kiadó lakás 1015 Budapest Szabó Ilonka utca

Budapest I. kerületének egyik legkedveltebb részén, a Vár oldalában, a Szabó Ilonka utcában kínálunk kiadásra egy fél emeleti, kertre néző, 90 nm-es, teljes körűen berendezett és gépesített lakást egy rendezett, hangulatos társasházban.

Budapest I. kerületének egyik legkedveltebb részén, a Vár oldalában, a Szabó Ilonka utcában kínálunk kiadásra egy fél emeleti, kertre néző, 90 nm-es, teljes körűen berendezett és gépesített lakást egy rendezett, hangulatos társasházban.

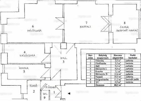
A szobák világosak, méreteik 23, 20, 12 és 9 nm, három szoba teljesen külön nyíló, így ideálisak családok vagy párok számára. A konyha beépített bútorokkal és modern gépekkel felszerelt, a hallban kialakított étkező pedig kényelmes helyet biztosít egy családi vagy baráti étkezéshez. A fürdő zuhanyzós, a mosógép szintén a lakás része, a WC külön helyiségben található.

A rengeteg beépített szekrény segíti a rendezettséget, a lakás melegéről cirkófűtés, a nyári kellemes hőérzetről klíma gondoskodik.



A lakás elhelyezkedése páratlan: a történelmi Várnegyed, a Halászbástya, a Mátyás-templom és a Budavári Palota mindössze néhány perc sétára található, így minden nap élvezheti Budapest egyik legszebb, történelmi környezetét. A környék romantikus utcái, hangulatos kávézói és éttermei további kényelmet és élményt nyújtanak a lakóknak.

A közös költség 20 000 Ft, a vízóra egyedi mérés alapján fizetendő, a többi fogyasztás szintén saját mérés szerint történik.

Bérleti díj: 450 000 Ft/hó + 2 havi kaució.
Még 11 kép
90m2
450 000 Ft/hó
Kategória
Kiadó
Ár
450 000Ft/hó
Típus
lakás
Emelet
f.sz.
Közös költség
20 000 Ft
Ingatlan állapota
Jó
Bútor
Bútorozott (Fiatalos)
Fűtés
Gáz (cirko)
Nézet
Zöldudvar
Szobák száma
4
ref
14008
Budapest I. kerületének egyik legkedveltebb részén, a Vár oldalában, a Szabó Ilonka utcában kínálunk kiadásra egy fél emeleti, kertre néző, 90 nm-es, teljes körűen berendezett és gépesített lakást egy rendezett, hangulatos társasházban.
A szobák világosak, méreteik 23, 20, 12 és 9 nm, három szoba teljesen külön nyíló, így ideálisak családok vagy párok számára. A konyha beépített bútorokkal és modern gépekkel felszerelt, a hallban kialakított étkező pedig kényelmes helyet biztosít egy családi vagy baráti étkezéshez. A fürdő zuhanyzós, a mosógép szintén a lakás része, a WC külön helyiségben található.
A rengeteg beépített szekrény segíti a rendezettséget, a lakás melegéről cirkófűtés, a nyári kellemes hőérzetről klíma gondoskodik.
A lakás ideális igényes pároknak, családoknak, de központi elhelyezkedése miatt akár irodai célokra is kiváló. Olyan bérlőt keresünk, aki sajátjaként vigyáz rá, és nem dohányzik.
A lakás elhelyezkedése páratlan: a történelmi Várnegyed, a Halászbástya, a Mátyás-templom és a Budavári Palota mindössze néhány perc sétára található, így minden nap élvezheti Budapest egyik legszebb, történelmi környezetét. A környék romantikus utcái, hangulatos kávézói és éttermei további kényelmet és élményt nyújtanak a lakóknak.
A közös költség 20 000 Ft, a vízóra egyedi mérés alapján fizetendő, a többi fogyasztás szintén saját mérés szerint történik.
Bérleti díj: 450 000 Ft/hó + 2 havi kaució.
Érd.: +36 70 384 5302
A szobák világosak, méreteik 23, 20, 12 és 9 nm, három szoba teljesen külön nyíló, így ideálisak családok vagy párok számára. A konyha beépített bútorokkal és modern gépekkel felszerelt, a hallban kialakított étkező pedig kényelmes helyet biztosít egy családi vagy baráti étkezéshez. A fürdő zuhanyzós, a mosógép szintén a lakás része, a WC külön helyiségben található.
A rengeteg beépített szekrény segíti a rendezettséget, a lakás melegéről cirkófűtés, a nyári kellemes hőérzetről klíma gondoskodik.
A lakás ideális igényes pároknak, családoknak, de központi elhelyezkedése miatt akár irodai célokra is kiváló. Olyan bérlőt keresünk, aki sajátjaként vigyáz rá, és nem dohányzik.
A lakás elhelyezkedése páratlan: a történelmi Várnegyed, a Halászbástya, a Mátyás-templom és a Budavári Palota mindössze néhány perc sétára található, így minden nap élvezheti Budapest egyik legszebb, történelmi környezetét. A környék romantikus utcái, hangulatos kávézói és éttermei további kényelmet és élményt nyújtanak a lakóknak.
A közös költség 20 000 Ft, a vízóra egyedi mérés alapján fizetendő, a többi fogyasztás szintén saját mérés szerint történik.
Bérleti díj: 450 000 Ft/hó + 2 havi kaució.
Érd.: +36 70 384 5302