Eladó ház 2040 Budaörs Deák Ferenc utca
Budaörs kertvárosi részén a Deák Ferenc utcában eladó 72 nm hasznos alapterületű (1,9 m feletti belmagassággal),de a teljes terület a tetőtérrel együtt megközelítőleg 100 m-es, dupla komfortos házrész!
Budaörs kertvárosi részén a Deák Ferenc utcában eladó 72 nm hasznos alapterületű (1,9 m feletti belmagassággal),de a teljes terület a tetőtérrel együtt megközelítőleg 100 m-es, dupla komfortos házrész!
A földszinten található egy ideális méretű előszoba, kellemes, világos nappali (17 nm-es) és innen nyílik a hálószoba (21 nm-es), ahol kipihenheti a mindennapok fáradalmait, mindkettő utcára néző és K-i fekvésű.
A külön konyha van, beépített modern bútorokkal gépekkel felszerelt, melyek a vételár részei. Nagy udvarra néző ablak van, itt a főzés nemcsak szükséglet, hanem élmény is lehet. A konyhából nyílik a kincset érő kamra, igazi áldás minden gondos háziasszony számára, polcokkal, melyek mindent elnyelnek a lekvároktól a befőttekig.
A földszinten helyezkedik el az egyik zuhanyzós fürdőszoba, WC-vel.
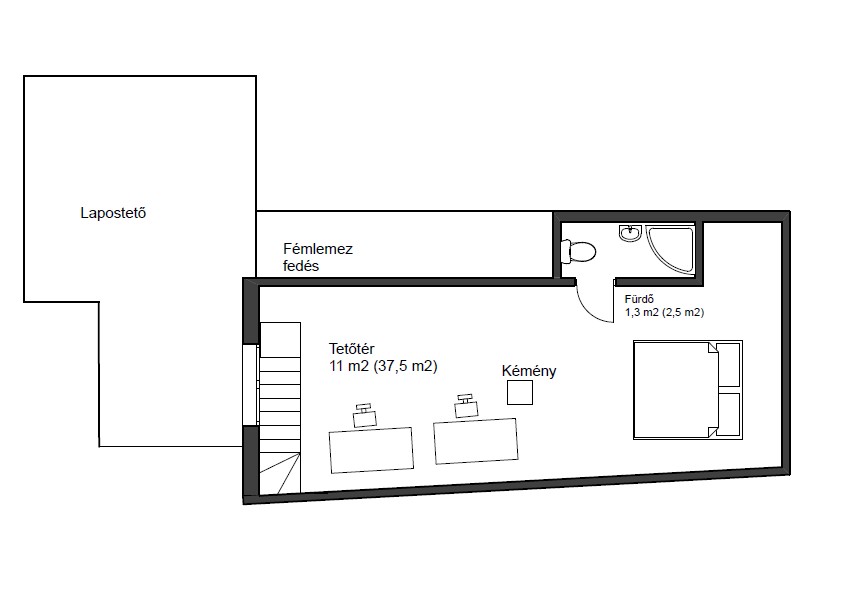
A tetőtérben kialakított tágas, egyterű (bruttó 37,5 nm) helyiség számos lehetőséget kínál, igény esetén könnyen leválasztható egy újabb szoba. A tetőteret jelenleg irodaként használják, de lehet gyerekszoba vagy vendégszoba kinek mire van szüksége. Itt kapott helyet a második fürdőszoba is WC-vel.
Az otthon melegéről hangulatos vegyes tüzelésű kályha gondoskodik és alternatívaként rendelkezésre áll hűtő-fűtő klíma is. Továbbá a padló fűtés ki van építve csak rá kell csatlakozni, de a gázfűtés is megoldható, mivel a gázcsonkot meghagyták az udvarban.
A ház zsindely héjazatú, tetőablakokkal, jó minőségű nyílászárókkal folyamatosan karbantartott, felújított: belső építészetileg, új gépészet és villamos rendszerek, megújult belső terek vannak.
Még 27 kép
72m2
119M Ft
Kategória
Eladó
Ár
119MFt
Típus
ház
Emelet
f.sz.
Ingatlan állapota
Jó
Fűtés
Egyedi
Nézet
Utcára
Szobák száma
3
Energetikai tanúsítvány száma
HET-1033-5579
Telek méret
150m2
Kocsibeálló
ref
5619
Budaörs kertvárosi részén a Deák Ferenc utcában eladó 72 nm hasznos alapterületű (1,9 m feletti belmagassággal),de a teljes terület a tetőtérrel együtt megközelítőleg 100 m-es, dupla komfortos házrész!
A földszinten található egy ideális méretű előszoba, kellemes, világos nappali (17 nm-es) és innen nyílik a hálószoba (21 nm-es), ahol kipihenheti a mindennapok fáradalmait, mindkettő utcára néző és K-i fekvésű.
A külön konyha van, beépített modern bútorokkal gépekkel felszerelt, melyek a vételár részei. Nagy udvarra néző ablak van, itt a főzés nemcsak szükséglet, hanem élmény is lehet. A konyhából nyílik a kincset érő kamra, igazi áldás minden gondos háziasszony számára, polcokkal, melyek mindent elnyelnek a lekvároktól a befőttekig.
A földszinten helyezkedik el az egyik zuhanyzós fürdőszoba, WC-vel.
A tetőtérben kialakított tágas, egyterű (bruttó 37,5 nm) helyiség számos lehetőséget kínál, igény esetén könnyen leválasztható egy újabb szoba. A tetőteret jelenleg irodaként használják, de lehet gyerekszoba vagy vendégszoba kinek mire van szüksége. Itt kapott helyet a második fürdőszoba is WC-vel.
Az otthon melegéről hangulatos vegyes tüzelésű kályha gondoskodik és alternatívaként rendelkezésre áll hűtő-fűtő klíma is. Továbbá a padló fűtés ki van építve csak rá kell csatlakozni, de a gázfűtés is megoldható, mivel a gázcsonkot meghagyták az udvarban.
A ház zsindely héjazatú, tetőablakokkal, jó minőségű nyílászárókkal folyamatosan karbantartott, felújított: belső építészetileg, új gépészet és villamos rendszerek, megújult belső terek vannak.
Az épület teljesen körbe szigetelt: aljzat víz- és hőszigetelés, homlokzati szigetelés és tetőszigetelés.
A felújítás fotókkal dokumentálva van.
Energiatakarékos H tarifás háztartás, így
a ház teljes rezsije 20-22 000 Ft./hó.
Üvegszál optikai kábeles TV, telefon és internet.
Van egy kicsi kb. 50 m2-es kert, ami lehetőséget ad akár két kocsi beállására, vagy kertipartyk tartására. Valóban nem nagy a kert, de itt is kellemes időt lehet eltölteni. Két esővízgyűjtő és komposztáló is szolgálja a környezet tudatosságot. Az udvarban található még, fatároló, 2 db magas ágyás és egy kerti tároló.
A lakóház kellemes hangulatú, ahová jó hazatérni egy fárasztó nap után, barátságos terekkel várja új tulajdonosát.
A környék gyerekes családok számára közkedvelt, biztonságos, de az idősebb generációnak is megfelelhet: a Deák Ferenc utca az 1. számú általános iskola, óvoda 500 m-re, boltok, valamint nagyobb üzletek teszik kellemesebbé az itt élők életét.
A közlekedés jól megoldott: Budaörsön helyi valamint a BKK buszjáratok működnek, és könnyű eljutni Budapestre is az M7-es autópálya közelsége miatt, de Balaton is könnyen elérhető.
A házrész 773 m-es telken helyezkedik el, egy négylakásos ingatlan részeként, és ügyvédi megosztással rendelkezik. Az ingatlan hitelképes, így finanszírozással is megvásárolható.
Budaörs azért jó lakóhely, mert zöld, nyugodt környezetet kínál kiváló szolgáltatásokkal és családbarát infrastruktúrával, miközben nagyon közel van Budapesthez és könnyen megközelíthető. Emellett élénk közösségi élet, jó iskolák és sok munkahely is hozzájárul a magas életminőséghez.
Várom érdeklődő hívását!
Eladási irányár 119 M Ft.
Érd.: +36 70 384 5302
A földszinten található egy ideális méretű előszoba, kellemes, világos nappali (17 nm-es) és innen nyílik a hálószoba (21 nm-es), ahol kipihenheti a mindennapok fáradalmait, mindkettő utcára néző és K-i fekvésű.
A külön konyha van, beépített modern bútorokkal gépekkel felszerelt, melyek a vételár részei. Nagy udvarra néző ablak van, itt a főzés nemcsak szükséglet, hanem élmény is lehet. A konyhából nyílik a kincset érő kamra, igazi áldás minden gondos háziasszony számára, polcokkal, melyek mindent elnyelnek a lekvároktól a befőttekig.
A földszinten helyezkedik el az egyik zuhanyzós fürdőszoba, WC-vel.
A tetőtérben kialakított tágas, egyterű (bruttó 37,5 nm) helyiség számos lehetőséget kínál, igény esetén könnyen leválasztható egy újabb szoba. A tetőteret jelenleg irodaként használják, de lehet gyerekszoba vagy vendégszoba kinek mire van szüksége. Itt kapott helyet a második fürdőszoba is WC-vel.
Az otthon melegéről hangulatos vegyes tüzelésű kályha gondoskodik és alternatívaként rendelkezésre áll hűtő-fűtő klíma is. Továbbá a padló fűtés ki van építve csak rá kell csatlakozni, de a gázfűtés is megoldható, mivel a gázcsonkot meghagyták az udvarban.
A ház zsindely héjazatú, tetőablakokkal, jó minőségű nyílászárókkal folyamatosan karbantartott, felújított: belső építészetileg, új gépészet és villamos rendszerek, megújult belső terek vannak.
Az épület teljesen körbe szigetelt: aljzat víz- és hőszigetelés, homlokzati szigetelés és tetőszigetelés.
A felújítás fotókkal dokumentálva van.
Energiatakarékos H tarifás háztartás, így
a ház teljes rezsije 20-22 000 Ft./hó.
Üvegszál optikai kábeles TV, telefon és internet.
Van egy kicsi kb. 50 m2-es kert, ami lehetőséget ad akár két kocsi beállására, vagy kertipartyk tartására. Valóban nem nagy a kert, de itt is kellemes időt lehet eltölteni. Két esővízgyűjtő és komposztáló is szolgálja a környezet tudatosságot. Az udvarban található még, fatároló, 2 db magas ágyás és egy kerti tároló.
A lakóház kellemes hangulatú, ahová jó hazatérni egy fárasztó nap után, barátságos terekkel várja új tulajdonosát.
A környék gyerekes családok számára közkedvelt, biztonságos, de az idősebb generációnak is megfelelhet: a Deák Ferenc utca az 1. számú általános iskola, óvoda 500 m-re, boltok, valamint nagyobb üzletek teszik kellemesebbé az itt élők életét.
A közlekedés jól megoldott: Budaörsön helyi valamint a BKK buszjáratok működnek, és könnyű eljutni Budapestre is az M7-es autópálya közelsége miatt, de Balaton is könnyen elérhető.
A házrész 773 m-es telken helyezkedik el, egy négylakásos ingatlan részeként, és ügyvédi megosztással rendelkezik. Az ingatlan hitelképes, így finanszírozással is megvásárolható.
Budaörs azért jó lakóhely, mert zöld, nyugodt környezetet kínál kiváló szolgáltatásokkal és családbarát infrastruktúrával, miközben nagyon közel van Budapesthez és könnyen megközelíthető. Emellett élénk közösségi élet, jó iskolák és sok munkahely is hozzájárul a magas életminőséghez.
Várom érdeklődő hívását!
Eladási irányár 119 M Ft.
Érd.: +36 70 384 5302